现代简约风,高级感藏在细节里
设计师:刘婷 现代简约/136㎡
作者:弘艺装饰发布时间:2019-05-29
项目名称:文艺田园
设计师姓名:杨佳会
设计公司:北京弘艺装饰唐山分公司
地点:金凤华府
项目面积:133平米
主要材料:基础工程加地砖,橱柜,卫浴洁具,门等主材。
工程费用:98000元
业主基本信息:
房子是五口人居住,包含两个孩子和老人居住,业主要求造型简洁,颜色明亮,给后期改造留有更大改造空间,将来孩子如有需要,可能进行改造,现阶段要求简洁大方,家庭人数也对空间要求增加。
业主小故事:
业主是五口之家,年轻的时候自己的新居是请“游击队”装修的,钱没少花,心没少操,质量却糟的一塌糊涂。所以这次装修,业主决定找正规整修公司,毕竟三分材料,七分施工,正规装修公司一方面能保证施工质量,另一方面售后服务有保障。由于之前装修菜量都是自己选择,造型自己设计,导致后来装成 效果不佳,出现颜色搭配不协调,设计效果不理想,所以采取轻装修重装饰,给后期空间改造留有余地。

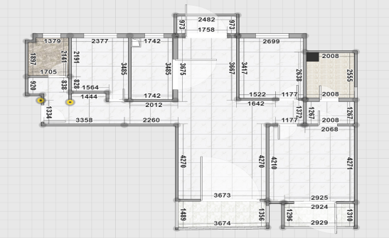
原图分析:
该户型卧室空间比较规整,卧室,客厅和阳台空间足够用,采光性很好。
不足的地方:
1. 厨房空间比较窄,没有放置冰箱的位置,
2. 进门处没有鞋柜的位置

平面分析:
进门口左手边有通顶的鞋柜,有足够的空间可以放置鞋子,由于厨房没有放置冰箱的位置,所以把冰箱放到了厨房门口那,,考虑到以后的生活用品可能会越来越多,所以书房做了一个榻榻米的设计,榻榻米的储藏功能非常强大,更加方便老人日常起居生活,这样更能空间充分利用上





嫌储藏空间不够?榻榻米的房间搭配书房一起使用,舒适随意之余,又能满足对储物空间的需求。家里地板上采用榻榻米,人们可以随意的赤脚在上面行走,非常舒适,其软硬适中的质地,合理利用空间,减少卫生死角。多设计一层踏板,方便老人行动

卫生间在选择瓷砖的时候选用了暖白色瓷砖,因为业主不希望空间太冷,马桶朝向应客户要求调整了方向,贴心的考虑到了业主的生活起居。浅色的木质浴室柜,透露出自然与原始之美,能充分体现主人的家居档次和身份的尊贵。
【唐山弘艺装饰】致力于唐山大包装修,唐山装修网,唐山装修套餐,唐山家装公司,唐山别墅设计,唐山装修效果图,唐山家装整装,唐山家装设计,上千平米材料展厅,上千款品牌主材供业主挑选,五星设计团队、金牌项目经理、材料部、质检部、客户部、为每位业主保驾护航,体现完美服务,创造舒心家装!
装修分期
设计师:刘婷 现代简约/136㎡
设计师:邢志超 现代简约/132㎡
设计师:程光 现代简约/130㎡
设计师:邢志超 现代简约/120㎡
设计师:程光 现代简约/138㎡
设计师:邢志超 现代简约/124㎡