奶油中古风,温柔与复古撞个满怀
设计师:贾倩 现代简约/129㎡
作者:弘艺装饰发布时间:2019-06-01
项目名称:淡雅含蓄
设计师姓名:吕嘉昕
设计公司:北京弘艺装饰唐山分公司
地点:锦绣花苑
项目面积:129平米
主要材料:基础工程加地砖,橱柜,卫浴洁具,门等主材。
工程费用:100800元
业主基本信息:
房子是四口人居住,业主要求造型简洁,整体色彩明亮,两个孩子年龄差异有些大,更多是偏向小女儿和他们一起居住,将来长子如有需要,可能改造成婚房,现阶段要求简洁大方,家庭人数也对空间要求增加。
业主小故事:业主两口子是生意人,看多了各种装修风格,现在追求的是回归自然,不要求有过多复杂的装饰,女主人对整个空间的亮度有要求,而男主人比较喜欢中式,稳重大气,最后达成统一,选择新中式,满足各自的需求。

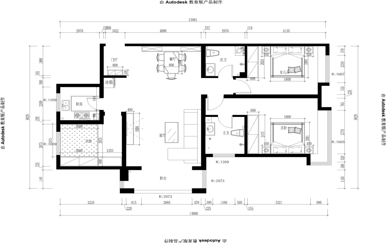
原图分析:
该户型整体空间比较规整,卧室,客厅和阳台空间足够用,采光性很好。
不足的地方:
1. 厨房空间比较窄,没有放置冰箱的位置,
2. 次卫是暗卫,空气流通不好
3. 主卫没有烟道,需要从墙上开孔。

平面分析:
入户玄关处正对一面墙,此处通过隔断或者软装饰来弱化空间的局促。客厅电视背景不大,次卧室比较小,为了增强空间利用率,选做榻榻米。厨房空间不大,把冰箱放在玄关背景后面,这样既隐蔽,又扩大了厨房的空间利用率。

由于业主喜欢简简单单的东西,整体要做中央空调,所以顶面需要做吊顶,用简洁明快的线条勾勒出大体轮廓,颜色上采用清新明快的色彩搭配。从而使得整体空间更简洁大气明快。

由于电视背景不大,所以没有过多的修饰背景,巧妙的将传统中式与现代结合,让家居在时尚流露传统元素,用简易金属线条来勾勒大体轮廓,中间用壁纸来陪衬,这样做出来的效果更简洁大气。顶部的石膏板吊顶造型简单的装饰与家具和电视背景墙呼应,从而使整个空间更具层次感。

全套定制家居,以白色为主,配上餐椅蓝色软饰,造型素简整体空间雅致沉稳、气度不俗。还融入了现代的元素,金属元素在家居和摆件之间的运用,让整个居室环境更包容。再加上墙面中式装饰画,时尚感与新中式做完美结合。

临窗而坐,纱帘半合。安享属于自己的时光,整个卧室区域素雅大方,整体以暖色调为主,柔和的色彩使人随意、放松的心情驻留在房间里,使得紧凑的空间具有视觉延伸和放大空间的效果。床头灯总是在需要它的时候暖暖的陪伴在主人的身边。

家中最梦幻的空间是女儿的房间。为了圆女儿一个公主梦,选择了她最爱的粉色做主色调搭配白色做点缀,儿童房大面积的采光使得整个空间明亮,颜色混搭中透出可爱活波的气息,超适合孩子。墙上的装饰画和饰品的轻巧有致,美观和收纳兼备。

在有限的空间内设计木质榻榻米与衣柜组合,对于空间利用及美观装饰得到完美的展现出来。充分的满足了收纳空间,线条简洁的白色储物柜,强调了设计的功能性原则。榻榻米与储物柜巧妙融为一体,柔和过渡,解放了空开同时增添了功能性。

卫生间在选择瓷砖的时候选用了灰色瓷砖,简洁大方,而且不失气质。深色的木质浴室柜,透露出自然与原始之美,能充分体现主人的家居档次和身份的尊贵。
【唐山弘艺装饰】致力于唐山装修报价,唐山装修网,唐山装修套餐,唐山家装公司,上千平米材料展厅,上千款品牌主材供业主挑选,五星设计团队、金牌项目经理、材料部、质检部、客户部、为每位业主保驾护航,体现完美服务,创造舒心家装!
装修分期
设计师:贾倩 现代简约/129㎡
设计师:刘婷 现代简约/136㎡
设计师:张志鹏 现代简约/169㎡
设计师:邢志超 现代简约/120㎡
设计师:程光 现代简约/138㎡
设计师:姚志杰 现代简约/184㎡