现代简约风,高级感藏在细节里
设计师:刘婷 现代简约/136㎡
作者:弘艺装饰发布时间:2019-06-03
项目名称:新生新居
设计师姓名:彭志远
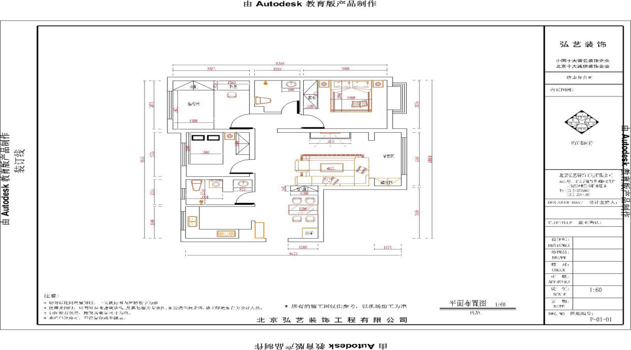
设计公司:北京弘艺装饰唐山分公司
地点:路北区恒泰悦季
项目面积:112平米
主要材料:基础工程加地砖、地板、橱柜、卫浴洁具、门等主材。
工程费用:75000元
业主基本信息:
业主是一个单身的小伙子,从事金融行业,三十岁,性格非常稳重,又能紧跟时尚的潮流,是一个积极工作、懂得生活的好男人。业主人脉交际很广,所以客厅的待客功能需求比较大,同时又比较自立,不靠家里父母支援,所以装修预算不是很高,综合下来,对我们设计师的要求比较高。
业主小故事:
业主工作比较迷茫,有时候需要把工作带回家来做,所以要有一个学习办公的地方,朋友们经常来家里喝茶做客,所以客厅不要太拥挤,要宽敞,亮堂。小伙子还比较喜欢烹饪,手艺棒棒的(这点跟我一样,哈哈),所以厨房要实用,厨房储物要充足。

原图分析:
112平米的户型,在高层中能做到三室两厅两卫,也算是开发商的良心之作了。客卫还做成了干湿分离,更是给这个户型做了不少的加分项,南面是主卧和客厅,采光也还不错,美中不足就是餐厅的地方太暗,而且进厨房要先进卫生间的干区,所以后期装修过程中进行了一些小的改动,把餐厅和客厅中间的这半面墙给打掉了,从厨房现有的门给堵上,从南面开一个门出来。

平面分析:
这样布局以后呢,入户门的北侧放置鞋柜也足够用,厨房和卫生间分开也比较方便,餐厅和客厅中间,把墙打掉了,放了一个镂空的柜子,既增加了餐厅的采光,从视觉上也增加了餐厅的空间感,又能做餐边柜使用,一举多得。主卧对面的卧室做了一个榻榻米加书桌的布局,既增加了居家的储物空间,又满足了业主在家办公的需求。

由于业主待客需求比较大,所以做一个漂亮的背景墙就势在必行了,同时,由于业主预算有限,所以不能使用大理石等昂贵的材质。经过与业主的协商,我们采用的是石膏线造型加彩色漆的搭配来凸显形象墙的地位,简单时尚,经济实惠。顶部没有做复杂的石膏板吊顶,也没有用传统的石膏线,而是采用了12公分的石膏板线,大宽度板线造型能明显增加空间的层次感,同事还不会造成空间的压迫感。

由于将客厅与餐厅中间的那段墙给拆掉了,沙发墙就变的有些短,而是和边上吊顶镂空隔断柜相结合,共同来做沙发背景,这样一来,沙发背景既不适合做复杂的造型,也不适合悬挂大幅的挂画,所以给客户选择了一块现代文艺气息比较浓重的单幅装饰画做以装饰

北书房做了一个东西方向通长的榻榻米,衣柜和书桌在一条线上,整洁、方便、实用,北面两个卧室的色系都做了调整,换成了冷色系,配上深色的木地板,是房间不会显的太冷,而又富有质感。由于榻榻米衣柜的限制,书房的窗帘只能选择单窗帘向开启。

对于主卧室,配以了和客厅一样的色系,配上一个现代风格的1.8米大双人床,一组简约的床头装饰画,一定能给业主一个非常放松的休息的环境。而北侧的通顶衣柜,大大的满足了我们日常的储物需求。最抢眼的就是南侧的大飘窗,读书、品茶、晒太阳、观风景,都是美好的享受。

北面的小卧室是客房的设置,将来有了小宝宝以后,这里也会作为儿童房使用,所以床头的装饰画就换成了一面照片墙,将来能记载宝宝的成长,和一家人每一滴的幸福时光。

整体橱柜实用为主,地面、墙面与顶面都以浅色调为主,搭配上浅橱柜门板,显得干净整洁。水盆、操作台和灶台保证了洗切炒的顺序,方便我们日常使用,L形地柜+一字形吊柜,最大限度的增加了厨房的储物空间。

客卫生间墙砖地砖的选择和主卫是一样的,浴室柜采用的是白色的台上盆。客卫干湿分离的设计使空间足够摆放洗衣机。为了安全保险起见,客卫和主卫一样,选择的都是钛镁合金材质的门,经久耐用,容易打理。
北京弘艺装饰官网
装修分期
设计师:刘婷 现代简约/136㎡
设计师:张志鹏 现代简约/169㎡
设计师:张伟 新古典/92㎡
设计师:程光 现代简约/138㎡
设计师:张志鹏 法式/135㎡
设计师:邢志超 现代简约/124㎡