开尔云公馆200下跃实景
设计师:孙天立 现代简约/200㎡
作者:弘艺装饰发布时间:2019-06-04
项目名称:《清清的茶》
设计师姓名:贾倩
设计公司:北京弘艺装饰
地点:景泰翰林
项目面积:87㎡
主要材料:墙漆、抛釉砖、壁纸、中式线条、大理石、
工程费用:6万
业主基本信息:
男主人是个领导,某私企领导,平时工作比较忙,没有太多时间盯着装修,甚至和家人在一起的时间都很少,所以他的要求一定是让整个装修看起来很温暖。所以设计起来要求较高,色调上要求以暖色为准,因为工作太忙,所以想在装修的新家上弥补家人一些遗憾;而女主人是在一个国企里面上班,平时工作比较空闲,有很多时间来照顾家庭和孩子,这个房子也是给老人和孩子买的。 孩子的奶奶平时接送接送孩子。
业主小故事:
在整个设计当中还是比较顺利的,男主人虽然很忙,但是很爱自己的家庭,很珍惜自己现在来之不易的幸福。前期男主人找到我时,把自己的想法表达给我,说房子简单大方就可以,老人一辈子操劳不容易,由于自己和太太工作的原因,又得让老人接送孩子。虽然带孩子辛苦,但是孩子也给老人带去了无穷的乐趣。

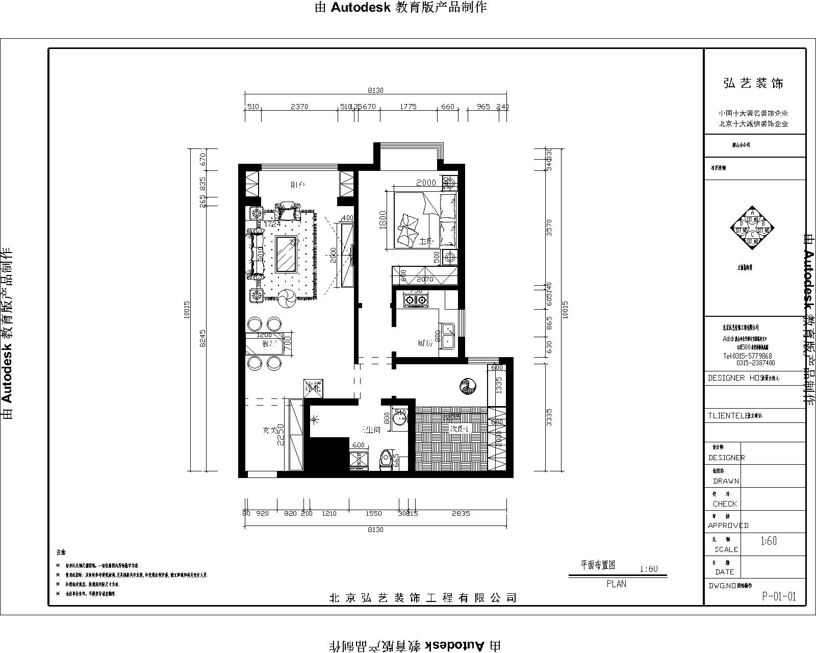
原始量房图户型分析:
1、此户型白天采光充足,通风性良好。南北阳台,生活方便。
2、客餐厅区域连在一起较大。
3、 此户型拐角多,不是那么方正。

平面布置图分析
此平面布局,按人体工程学,充分考虑客户生活习惯,客餐厅连在一起,此户型有充分改造的空间余地,厨房可以改造成U型厨房,冰箱位置可以预留出来了,小卧室用踏踏米,储物空间非常大了,卫生间还有一个独立的花洒空间洗澡空间独立,非常好打理。


本次案例是一个87平米的户型设计,风格定义为新中式,就是因为客户的对家庭的热爱,感染了我,我感觉一个男人难得在外面风雨打拼,特别累,压力又很大的情况下还对亲人,对家人保持着这种热情和热爱,所以我第一想法就是一定要给客户一个温暖的家。而新中式刚好能彰显简约,安静,让人能够感受到内心的纯净,以及追求内心的简单和自然的心理。所以房间全屋都用了纯色温馨的淡黄色壁纸,壁纸选择的不是很亮的颜色,回到加厚会感觉一下子沉淀下来了,心里安静了,电视背景墙选用中式线条,简单整洁,大方大气。

整个空间的色调为暖色系,整体给人感觉明亮而又恬静,空间的色彩的调试没有突兀的部分,色彩单一。比如空间和地面的对比,墙面和地板的色彩对比。色彩的选择也是挑选的简单、素雅为主的颜色,整体看起来就会温馨。在浅色整体主调下,我们可以在一些特别的装饰色彩可以用一些深色系列的,但整体色系最好搭配感强。 整体设计上给人带来清爽明快之感,宽敞的空间布局让人更加舒畅,单一的色调让人就看不腻。空间布局、色彩用用、材质的选择,都突出了简约又大气的风格。 新中式装修风格中,餐厅采用暖色为主色调。

卧室为我们日常的休息场所,卧室在家中有着举足轻重的地位,一间美式风格的卧室,更是让人倍感温馨雅致。便是如何利用新中式风格中的三种经典的元素,打造一个格调满满的卧室。床型采用纯正的新中式风格设计,床头是四边形,加以优质的实木,造型简约又不失格调,为整个卧室的新中式风格打下基础。床体以优质桃花心木和芬兰松木制成,木纹美观,质地坚硬,而且让床体具有很好的承重性,经久耐用。新中式卧室装修设计上,主人是有很大的发言权的,因为这是主人专属的领地,设计成什么样才好,完全取决于主人的标准。在追求风格与实用性的选择上,主人完全可以按照自己的想法打造,而不必拘泥于所谓形式

在设计次卧室床头背景墙其实不用太过于复杂,一个好的卧室床头背景墙设计是突显品味的地方。但是相对来说次卧室可以弱化设计,一般都是作为儿童房,不必设计的太繁琐,一般是做为客房,也没必要设计的太复杂。设计的踏踏米储物空间更多,针对两室户型踏踏米是一个非常不错的户型。
装修分期
设计师:孙天立 现代简约/200㎡
设计师:张志鹏 现代简约/169㎡
设计师:张志鹏 其他/115㎡
设计师:邢志超 现代简约/132㎡
设计师:邢志超 新中式/142㎡
设计师:邢志超 现代简约/124㎡