奶油中古风,温柔与复古撞个满怀
设计师:贾倩 现代简约/129㎡
作者:弘艺装饰发布时间:2019-06-17
项目名称:《理解》
设计师姓名:林晓芳
设计公司:北京弘艺装饰
小区:景泰翰林
地点:美式风格
房屋户型:三室两厅两卫一厨
项目面积:137㎡
工程费用:12.5万
主要材料:墙漆、抛釉砖、烤漆木门 、卫浴、扣板、橱柜
业主基本信息:
女主人是个普通职工,温文尔雅,单位在唐山,男主人平时工作比较忙,没有太多时间盯着装修,女儿在国外读书。这是浪漫的一家人,男主人女主人都很善良,为人和善。他们要的是一个温馨,宁静的家。
业主小故事:
匆忙的生活节奏,平凡的生活,他们是一对平凡再平凡不过的夫妻,早饭中饭午饭,上班下班,就是这种平凡的生活他们是幸福的,相互依偎,相互关怀,相互爱着彼此,生活是平凡的乐趣,是续写的热情。

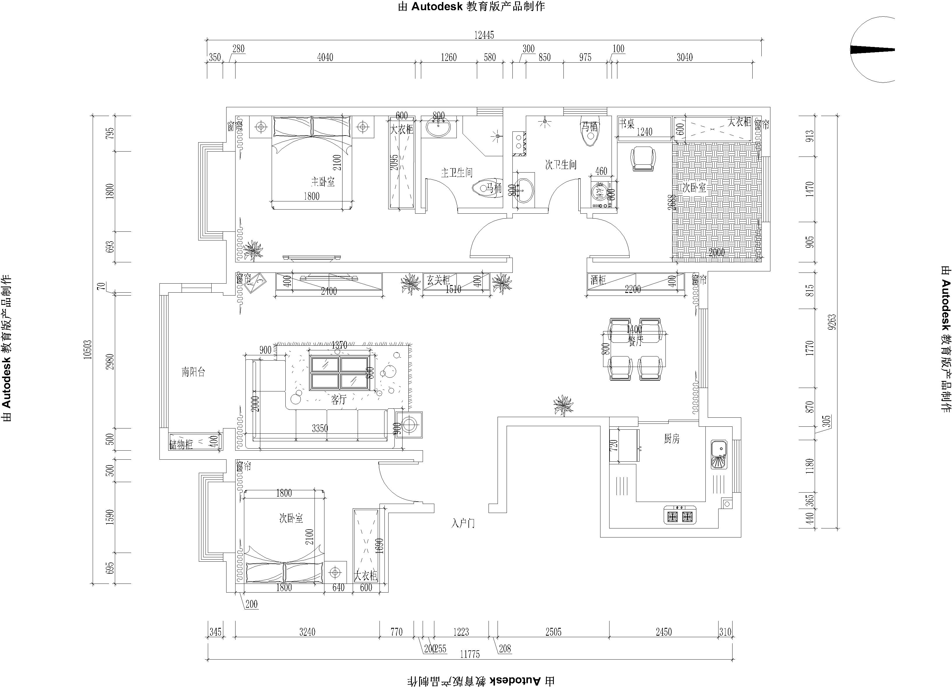
原始量房图户型分析:
1、 此户型为南北通户型,所有空间均带窗子,白天采光充足,通风性及好。
2、 空间划分明确。
3、 不足之处,空间整体格局有点零碎,但是每个独立空间还是比较方正的。

平面布置图分析:
入户门口独立的门厅,客厅、餐厅独立而又宽敞的空间,南阳台可做晾晒衣服的空间,接近大大的落地窗。主卧室宽敞明亮。次卧室在现有的空间满足大衣柜书桌床的多重功能,北次卧室就是充当衣帽间和客房的作用了。根据人体工程学,通过简单的空间逻辑,规划每一寸空间充分发挥它的意义。







美式家装风格以简单、大气而著称,而美式风格又可分为传统美式、简约美式,不同的风格各有各的的特点,美式的家装在房屋设计、家具打造、色彩处理和元素拼接上都力求简单化,通过不拘一格的线条设计加简洁单一的色调,给人们提供最爽朗、最清脆的住宅环境,以实用性为主,不过分强调华丽和奢华,不同的空间装修的重点也各不相同,比如:客厅的设计一定要简洁明快,凸显大气、舒适的特色。


在浅色整体主调下,我们可以在一些特别的装饰色彩可以用一些深色系列的,但整体色系最好搭配感强。这款主卧布置非常的简洁,以白色为主色,再配上古朴、大气的木地板和大床,则能营造出自然、舒适的气息。
装修分期
设计师:贾倩 现代简约/129㎡
设计师:张天任 新古典/147㎡
设计师:程光 现代简约/138㎡
设计师:邢志超 新中式/142㎡
设计师:姚志杰 现代简约/184㎡
设计师:张志鹏 法式/135㎡