现代简约风,高级感藏在细节里
设计师:刘婷 现代简约/136㎡
作者:弘艺装饰发布时间:2019-06-18
项目名称:《都市繁华》
设计师姓名:刘瑞芹
设计公司:北京弘艺装饰
地点:景泰翰林
项目面积:106㎡
主要材料:墙漆、抛釉砖、太阳线、大理石、文化石、
工程费用:12万
业主基本信息:
此户型为年轻小两口居住,平时小两口在外面工作很忙,没有时间操持装修,家里有个可爱的的男宝宝,夫妻两个比较喜欢美式装修风格,喜欢美式的大气,但是不想家里装修出来太老气。
业主小故事:
随着人们生活节奏加快,如今很多楼盘有一些精装修的房子,方便人们直接拎包入住。但我们屋主是一个对生活充满热爱,对自己的未来也是有要求的,当初和业主沟通方案的时候他的宝宝才刚出生不久,当时我脑海里就闪现过了这句话,如今经过一年是运作总算可以交付一个结果了。业主的宝宝也很可爱,开始咿呀学语了,希望是每一个美好结果的萌发之处,或是事物向上发展的转折之点,不仅业主有,我也有!他希望有一个优美且心仪的环境,而我的希望则是能尽力实现他的愿望!

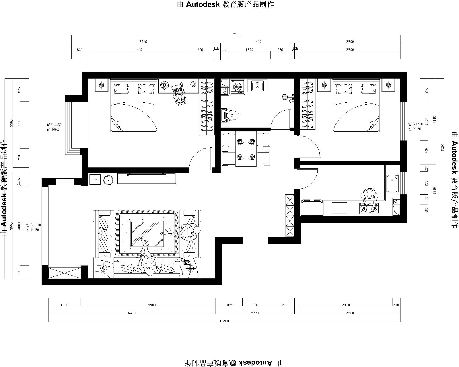
原始量房图户型分析:
1、 此户型未伪南北通户型,白天采光充足,通风性良好。南阳台,生活方便。
2、 客餐厅区域较小,中厅区域较大。
此户型拐角很多,看上去不是那么方正。

平面布置图分析
此平面布局,按人体工程学,充分考虑客户生活习惯,一进门右手边做为一个通体鞋柜,增加家里的储物空间,此户型为幸福的三口之家,由于孩子现在还比较小,玩具比较多,所以此户型最先考虑的应该储物空间阳台放一个通顶的壁柜,增加家里的实用性,阳台也可以作为一个储物空间,平时可以上上网没看看书,比较安静的空间,一进门入户的位置为餐厅的位置餐厅位置比较狭小,所以建议餐桌放个小一点的折叠桌或者是四人餐桌。


设计风格时,不仅要让空间本身充满想象,同时营造出的氛围能感染周围的每一个人。本案作品将复古和摩登两种元素结合,打造轻奢美式氛围,给予繁忙的生活里增加几许小资的个人时光。

本案例是美式风格设计计空间时,不仅要让空间本身充满想象,同时营造出的氛围能感染周围每一个人运用简约简洁的设计手法强调室内空间形态的单一性、抽象性。大量运用纯色,突出色彩的跳跃,大胆而灵活,不仅是对风格的遵循,也是个性的展示。简约不等于简单,经过深思熟虑后经过创新得出的设计和思路的延展,不是简单的“堆砌”和平淡的“摆放”。在家具配置上,白亮光系列家具,独特的光泽使家具倍感时尚,具有舒适与美观并存的享受。在配饰上,延续了黑白灰的主色调,以简洁的造型、完美的细节营造时尚前卫的感觉。


睡床是沿着窗户摆设,两边预留阿足够的走动空间,墙面粉刷浅灰色的墙漆与地面地砖颜色相近,看起来甚是和谐。床品采用浅灰色软包形式,增加卧室的舒适感,配上深灰色的床品床头两边金属材质的台灯凸显了整个空间的大气感,床旁边有一个大大通顶的衣柜增加了整个屋子的储物空间,卧室一进门的位置顶面做了个平面吊顶,减弱了卧室的刀把形状 现代住所的开展,小家庭的组成,大家心理上的需求,期望卧室具有私密性、蔽光 性,配套洗浴,静谧舒服,与住所内其他房间分隔开来。我规划的卧室除了主卧加了个内卫外,再者除了摆放双人床外,留有必定的面积摆放卧室家私,如衣柜,电视柜,床头柜,还留有必定空间能够休闲活动


次卧室为儿童房,主人孩子现在还比较小,整体色调以蓝色为主,整体清新自然,次卧选用了一个非常有趣的壁纸运用了很多的复古元素,打造了一个温馨且有层次感的卧室空间,整体没有过多的复杂装饰,为业主提供的简单的睡眠空间。

很多时候,由于房间户型设计的局限性,卫生间的面积比较狭小,但科学合理的设计,可以让卫生间看起来明亮宽敞且使用,虽然卫生间狭小但是不要忽略卫生间这个小地方,他关系着全家人的健康以及生活质量,卫生间设计要注意防水,防潮,通风,美观和易清洁同样重要,卫生间里面采用悬空式浴室柜,这样比较好清洁大理,马桶后面加上花片点缀,为整个卫生间增添了活力。
装修分期
设计师:刘婷 现代简约/136㎡
设计师:程光 现代简约/130㎡
设计师:张伟 新古典/92㎡
设计师:程光 现代简约/138㎡
设计师:张志鹏 法式/135㎡
设计师:邢志超 现代简约/124㎡