奶油风全屋|温柔到骨子里的家?
设计师:张志鹏 其他/115㎡
作者:弘艺装饰发布时间:2019-10-08
弘艺装饰装修设计师-杨奇:
主任设计师:杨奇
就职部门:弘艺装饰唐山设计部
从业时间:10年
毕业院校:河北科技大学
所学专业:环境艺术设计
设计理念:
设计源于生活,体现于生活,用心去体会,用心去创造,让感觉无限畅享,让生活更加舒适。
擅长风格:
现代简约、新中式、欧式经典、乡村田园、地中海、美式风格、新古典
设计经历:
(1) 2010年获得全国青年室内设计大赛优秀作品奖
(2) 2011年河北省设计大赛优秀奖
(3) 2012年获得实创装饰优秀设计师奖
(4) 2013年获得实创装饰服务优秀奖
唐山案例:
万科红郡、金隅乐府、金港静园、水电首郡、雅颂居、凤凰世嘉、唐城壹零壹、鹭港小区、南湖金地、景泰翰林、铂悦山、康馨雅苑
杨奇设计案例:
景泰翰林F区-87平米-现代风格

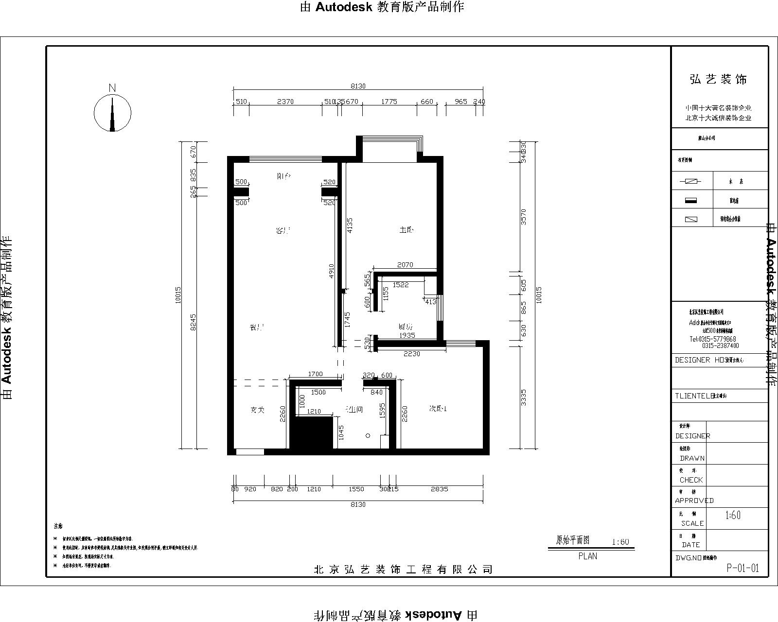
原始量房图户型分析:
1、 此户型为朝南户型,虽然采光通风很好,但是客餐厅整体来说挺大, 餐厅比较小,位置有限,显得很拥挤。
2、 卫生间面积不大,空间相对来说比较拥挤。
3、 主卧面积虽然不算小,但是空间布局受限制。

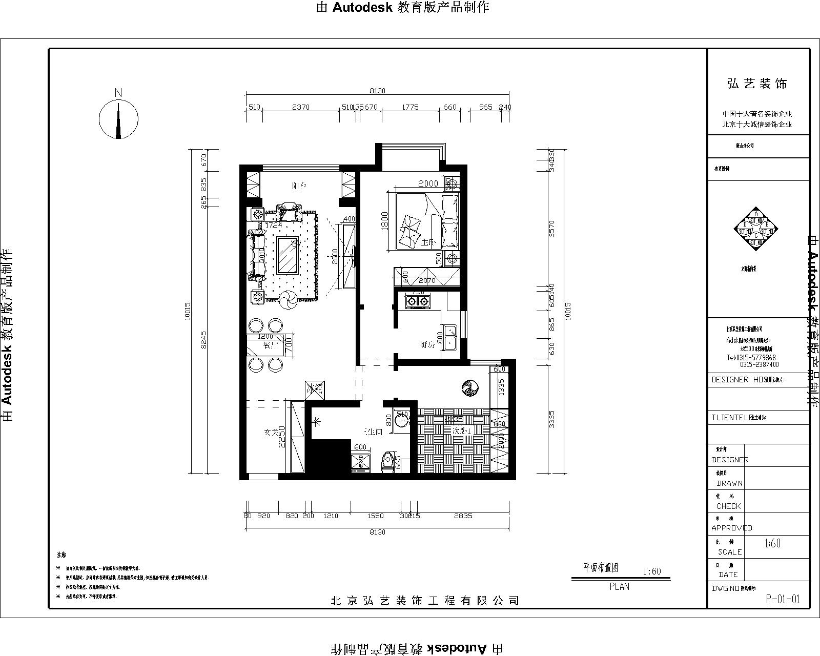
平面布置图分析
1:客餐厅由于面积算很大,所以在色彩搭配上尽量选用统一的颜色色这样布局很容易出效果,还会由于空间比较明亮,还会使室内空间显得很大,产生一种视觉错觉。以及在后期家具选择上有更好的选择,功能性很强,这样的话就不会摆完家具后不会显得小或者拥挤,反而会更有效果。
2:主卧室的墙面颜色和家具颜色也是以浅色为主,由于空间不算小,在考虑多个方案后,感觉还是把衣柜放到了床对面的那面墙,这样的话不仅空间布局合理,而且满足的功能更多,能增加更多的储物空间。
3:卫生间面积小,但是还要分出主次。



整个空间的色调为浅色系,因为浅色的色彩可以使人紧张的神经系统和视觉神经得到很好的放松和舒缓压力,客餐厅顶部做了些石膏板线,很好的突出了现代简约风格的线条感,既有层次,又简单大气,还不爱过时;背景墙采用墙漆颜色简单明快,下面的电视柜是木质柜台面,这样下来色彩与材质都一样,才能保证效果,也突出了色差与层次的重要性与吸人眼球的效果,屡试不爽。


主卧,次卧室面积不算小,在墙漆颜色上与客厅不同,采用比较温馨的暖白色,这个颜色既有保护眼睛的作用,又可以增加人的睡眠质量,是很慵懒的一个颜色,效果也不非常好,这是经过多次的实践证明。在空间布局上,把大衣柜放嵌入式的墙体里面更加节省空间,这样不仅使得衣柜能过做到最大化,增加储物,有使室内活动区域很宽松,不拥挤,也很温馨,是目前大多数年轻人的选择,深色的地板更加衬托出家具配上的高档。


表面与比较明亮的瓷片砖形成鲜明对比,这样的话会显示出厨房的整洁,此外也要注重实用与储物空间,对于大多数业主来说,厨房的储物空间似乎都没有够过,随着时间的推移,锅碗瓢盆跟衣服一样,越来越多,空间越来越拥挤,所以再做厨房设计的时候尽量注重尽可能加大厨房的储物空间。厨房与餐厅空间采光也很理想,此时在选择瓷砖与橱柜颜色也是需要色彩比较浅,浅色橱柜
装修分期
设计师:张志鹏 其他/115㎡
设计师:邢志超 现代简约/132㎡
设计师:程光 现代简约/130㎡
设计师:张伟 新古典/92㎡
设计师:邢志超 新中式/142㎡
设计师:邢志超 现代简约/124㎡