现代简约风,高级感藏在细节里
设计师:刘婷 现代简约/136㎡
作者:弘艺装饰发布时间:2019-04-22
项目名称:蜗居美宅
设计师姓名:赵馥琳
设计公司:北京弘艺装饰唐山分公司
地点:幸福花园
项目面积:118平米
主要材料:基础工程加地砖,橱柜,卫浴洁具,门等主材。
工程费用:76539元
业主基本信息:
房子是小两口居住,男主人发型设计师,女主人是位教师,平时工作比较忙。由于客户工作的原因,平时没有时间和精力去建材城自己买材料,所以选择了一个时尚品质的唐山装修公司,业主喜欢简约东西,所以要求具有要简洁大气舒适。
业主小故事:
业主是小两口之家,平时由于工作原因没有时间和精力自己采购材料,所以选择了唐山大包装饰模式的装修。女主人是教师,受平时工作环境的影响比较喜欢简单的造型。所以弘艺装饰的设计师推荐北欧风格。家应该是我们每个家庭成员的避风港,所以这个避风港就应该温馨、安全、体贴、舒适,色彩要明快些。这就是他们的要求
设计师感言:
设计是一项综合的艺术,它需要设计师博学多见,而又要善于归纳总结和提炼。只有这样才能找准一种元素、找对一种符号,组合得出一种文化给设计对象一种感觉。总而言之,室内设计艺术最终的目的不是一幅漂亮的图纸,而是一种只可意会不可言传的空间感觉,是视觉上所表述的一种潇洒的“语言
本案例是
一个118平米的唐山普通住宅房,空间整体设计比较简洁大气。给忙碌回家的主人一个温馨安逸的空间好好休息,没有了喧闹与烦恼,就静静的在这个空间享受着家庭的温馨。因为业主喜欢简单而不缺功能性的装修,所以硬装比较简单,大体的轮廓走向很明朗。在颜色搭配上使用了深浅对比色来突出房间的层次感。

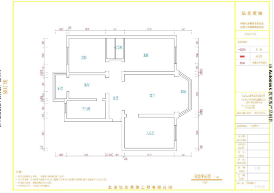
原图分析:
该户型卧室空间比较规整客厅,餐厅,生活阳台都足够大,采光性很好。
不足的地方:
1. 该户型不足的地方是厨房比较小
2. 次卧面积不大

平面分析:
1. 厨房面积不算大,但是客户想把冰箱放餐厅,经过模型布置方案设计决定把冰箱放到餐厅,做个吧台,这样宽敞明亮,客厅空间大,隔出一个生活阳台所以客厅布局比较简单,除了生活中必备的一些东西,没有多余的布置。从而使得客厅整体空间更简洁大气明亮。
由于业主比较心态年轻,在色彩上选用明度中性色彩作为背景色,皮质的沙发使得空间有重心感,线条简单,所以在设计上抛去以前繁琐的造型,用简洁明快的线条代替,从而使得整体空间更简洁大气明快。

由于背景墙超出电视背景墙的长度,所以在做造型的时候与沙发背景长度相对称,面积不是很大,设计师没有做太复杂的造型。简单造型,用壁纸来陪衬,加上隔板做装饰,这样做出来的效果更简洁大气,青春活力。顶部用线条做简单的装饰与家具和电视背景墙呼应,从而使整个空间更具层次感。



弘艺装饰的设计师考虑到整体色彩不易偏暗,所以客厅餐厅采用大面浅色墙漆做背景色,用隔板及绿植来点缀,让整体效果更简洁,明快。家具采用深色对比色,用绿植来调色,使得整体空间更清新活跃。


卧室以舒适为主,颜色不宜太暗,要避免使用大面积深色以防止闷重的感觉。所以在卧室的配色上用浅色调来进行调和。床头上配简单装饰画来点缀

厨房保留了较大的操作空间,墙砖与橱柜的颜色融为一体,温馨的色彩里多了一抹绿意,让整体厨房多了一份家的味道。这样的厨房不显拥挤,适合夫妻俩一起下厨,做一桌丰盛的美食。

卫生间的深浅搭配看起来很舒服,深色木质浴室柜看起来更有质感,浅色墙砖搭配深色腰线使整体空间更具层次感,坐便后面的背景设计使得整体空间看上去不再单调。整个卫生间以业主的生活习惯为出发点,简洁大气并具有功能性。
以上案例由弘艺装饰提供
装修分期
设计师:刘婷 现代简约/136㎡
设计师:张志鹏 其他/115㎡
设计师:张伟 新古典/92㎡
设计师:张天任 新古典/147㎡
设计师:程光 现代简约/138㎡
设计师:姚志杰 现代简约/184㎡