奶油中古风,温柔与复古撞个满怀
设计师:贾倩 现代简约/129㎡
作者:弘艺装饰发布时间:2019-04-23
项目名称 恒泰悦季
设计风格 现代
项目面积 108平米
户型 三室两厅
设计师 李琰
设计公司 弘艺装饰
主要材料 壁纸 石膏板 瓷砖 石材 木地板
工程费用 80000元
业主信息 业主是27岁左右的小两口,刚刚结婚,两个人都是理科生毕业,对唐山装修公司的选择很严谨,每项装修计划也很清晰,不喜欢特别复杂花式的装修风格,喜欢简约而不简单的设计风格,喜欢简约风格的家具,希望家里简洁明亮,还有温馨感。
业主的小故事 和业主第一次接触是公司搞活动男主人自己过来的,男孩儿稍微有点腼腆,刚开始不太好意思表达自己的想法,然后我就大概的讲了一下装修流程,带着他慢慢的看主材,给他讲解每项主材的优缺点,怎样辨别材料的品质。慢慢的男孩儿打开了话匣子,通过聊天感觉男孩儿很爱他的女朋友,想给她准备一个公主房,我们两个一拍即合,正好我给我女朋友也设计了一间,然后他发给了女朋友,她很喜欢,我们就愉快的合作了。
设计师感言 往事浓淡,色如清,已轻。经年悲喜,净如镜,已静。厌倦了城市的喧嚣,将心安放于淡淡的氛围,在平淡中感悟生命的本真,在静好中尝尽人生的百味,给心留一点空白,不让心因疲惫而荒芜了所有的付出。


设计理念: 客厅电视墙面是做的石材和灯带,既简单又大气。餐厅是错层处理,与酒柜很好的衔接,对空间起到了很好的分割作用,让整个空间更加协调呼应。闲暇时光,静候在无声的岁月里,享受着淡淡的恬静与优雅,静静的陶醉在淡澜书香的气息里,享受一份淡然的心绪,静静的感受生活中的美,搁浅岁月,幸福就在身边。

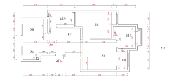
原始图分析:本方户型为三室两厅半南北通透户型,属于明客厅明阳台,明厨明卫,主卧室还有一个大飘窗,便于储存一些零碎的东西,小卧室有一个飘窗,可以做一个飘窗柜,平时休闲看书用。厨房属于细长型结构,卫生间空间比较大能够合理摆放洁具。

平面布置图分析:进门左手边是一个鞋柜起到很好的收纳作用,餐厅和客厅区域分离开来,厨房是U字形,把冰箱放到厨房里生活更便捷一些,主卧室放正常尺寸的双人床和大衣柜保证充足的储物空间,次卧室想要个公主房。北卧室是儿童房

现在追求“轻奢”风格的人越来越多,因为生活压力很大,大家都想寻求心里的平静,所以把家里装饰成轻奢的简约风格也是很流行的,浅色调的家具在配上柔和的墙地面的色彩搭配,加上点小装饰画的点缀,显得整体柔美,这样回到家以后就可以身心放松!

卧室和整体风格统一,做到舒雅实用。采用冷色调的窗帘,在整体的暖色调里加入了少许冷色,是整个空间更加和谐,床也是采用的原木色的床,整洁干净,而且显得很温馨,大方得体,深色的推拉门让空间更具有稳定性,床头的挂画也让空间更有灵性,墙面用了暖黄色的壁纸加两个小台灯增加空间的采光,床单被罩是比较灵动的条纹图案,主卧室还放了一个电视,可以满足生活的小需求。灰色的地砖也让整个空间的颜色更显得高级,也是现在很流行的颜色搭配。

北卧室是给孩子住的儿童房,因为想要小男孩儿所以采用了偏浅的蓝色调,显得比较清新而且又增添了卡通元素,给人耳目一新的感觉,动漫的床单也让整个空间曾填了许多儿童色彩,小星星的吊灯是黄色的,让整个空间显得不是很冷,条纹和飞碟壁纸让房间充满了童趣,书桌上的小摆件也很压重,采光也很好。

这个卧室做的榻榻米,考虑到女孩儿化妆品和衣服之类的东西比较多,所以选择榻榻米可以增加储物空间,通过我们交流,我就感觉每个女孩都有一个公主梦,加上他女朋友白白净净,穿着粉色的上衣,我就感觉来一个粉色调的公主房,突出甜美的感觉。搭配也稍稍的采用了一些卡通元素,但不是那种很幼稚的卡通,靠窗户的地上还加了一个圆形小地毯,提供娱乐和休闲。

卫生间采用的是大砖上墙,整体效果非常好。卫生间是一个涉及个人隐私的空间,因此,卫生间的门、窗应选择密封遮蔽性较好的产品。但是为了保证卫生间里没有异味,因此其通风处理也是比较重要的。如果卫生间里安装有窗户的,就可以采用自然通风:如果卫生间里是没有安装窗户的,我们可以自己安装一个通风换气设备用以卫生间通风。因为在我们沐浴时,卫生间内会产生大量的水和雾气,所以卫生间中装修的材料都应该具备防水、防潮的功能,天然石材和各种瓷砖都有很好的防水性、防潮性,而且其表面都比较光洁,平整易干燥。

厨房是长方形厨房,把烟机灶具抱到了橱柜里,整体空间比较狭长 ,橱柜也是做的L形橱柜,配的双饰面材质的门板,加隐藏式的橱柜把手,白色面板搭配灰色石英石台面,和黑色的窗户做了对比,冰箱放到了厨房里,这样做饭会显得更加方便。整体也是和客厅呼应采用的深灰色的墙砖和地砖,让厨房显得整洁安静,也符合了业主的生活感受。它依照家庭成员的身高、色彩偏好、烹饪习惯及厨房空间结构、照明结合、人体工效学、工程材料学和装饰艺术的原理进行科学合理的设计,使科学和艺术的和谐统一在厨房中体现得淋漓尽致。

阳台面积不是很大,但是采光很好,阳台为了不影响采光所以用了300*600的仿古砖,搭配上美缝更加漂亮,缝隙留了2.5毫米,做的灰色的美缝,显得高大上档次。原木色的榻榻米衣柜显现出了原木色的风格,桌子上黄白杯子互相映衬,铁艺摆件让整个画面显得层次感更加丰富,得体有内涵,吊顶采用了纳米抗菌型吊顶,防潮好打理,也是常不错的搭配方案。阳台上再摆放两个茶桌,没事的时候坐下来喝喝茶,放松一下心情,让生活多一些精彩。也让我们的生活多一些阳光,幸福感爆棚。
以上案例由弘艺装饰提供,官网:www.anlijiaxiao.cn
装修分期
设计师:贾倩 现代简约/129㎡
设计师:刘婷 现代简约/136㎡
设计师:邢志超 现代简约/120㎡
设计师:程光 现代简约/138㎡
设计师:邢志超 新中式/142㎡
设计师:张志鹏 法式/135㎡