现代简约风,高级感藏在细节里
设计师:刘婷 现代简约/136㎡
作者:弘艺装饰发布时间:2019-05-28
项目名称:《宜·家 》
设计师姓名:刘凯
设计公司:北京弘艺装饰
地点:光明西里
项目面积:72㎡
工程费用:5.3万
业主基本信息:
本案男主人是外县人,平时不在市里生活,买这个房子是为了孙子上学做陪读用,但是生活多长时间还不固定,要看孩子是在哪里上学,孩子父母都在外县上班,男主人要陪孙子在这生活一段时间,所以客户的要求就是简单,大气就行,不需要多奢华。
业主小故事:
当时这个客户是网站派的,当通知我去现场量房之后,我到了那发现一共有三家装修公司量房,对于一个72平米简装的客户,显得很是“抢手”啊,然后我进门和业主打完招呼,聊了几句,问了问他的情况以及对于这个房子的需求或者说要求,有几个点需要注意,原卫生间空间内原来是有一道玻璃推拉门的,本身外面预留洗脸盆的尺寸就很小,他还想在这放个洗衣机,而且地漏的位置有点碍手,所以这是一个需要考虑的一个点,还有就是一个厨房与餐厅分离,但是原厨房位置的窗户上的外墙体有出现大裂缝的问题,需要做外墙修补和防水,此外,原厨房空间很小,只够放下一个烟机灶具,非常小,当时在现场和业主讨论这个厨房要扩大的方案时,他拒绝了,他还想保留原样,可能他有他的想法。

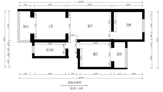
原始量房图户型分析:
1、 此户型为朝南户型,但是采光通风不是很好,客餐厅整体来说不算太大,但还算方正 餐厅空间还算可以,可以满足正常需求,但是如果后期买的家具较大,也会显得很拥挤。
2、 卫生间面积不大,空间相对来说比较拥挤。
3、 主卧面积虽然不算小,但是空间布局受限制。

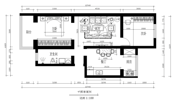
平面布置图分析
1:客餐厅由于面积不算很大,所以在色彩搭配上尽量选用浅色这样布局很容易出效果,还会由于空间比较明亮,还会使室内空间显得很大,产生一种视觉错觉。以及在后期家具选择上选用北欧风的家具,不仅尺寸不大,但是功能性很强,这样的话就不会摆完家具后不会显得小或者拥挤。
2:主卧室的墙面颜色和家具颜色也是以浅色为主,由于空间有限,把衣柜放到了床对面的那面墙,这样的话不仅空间布局合理,而且满足的功能更多,能增加更多的储物空间。
3:卫生间面积小,后期做一些储物多的浴室柜或者定制柜子是首先考虑的,然后把洗衣机与浴室柜并排放能最大化的利用尺寸,但是后期浴室柜不能买超过80CM的浴室柜,得买个小的。


整个空间的色调为高级灰色系,因为高级灰的色彩可以使人紧张的神经系统和视觉神经得到很好的放松和舒缓压力,背景墙做了个简单的小造型,为了让空间不是那么单调,在背景墙的上面用6公分石膏线做了个造型,然后里面贴的壁纸,客餐厅顶部做了些石膏造型,很好的突出了现代简约风格的线条感,既有层次,又简单大气,还不爱过时;这样下来,色彩与材质都一样,才能保证效果,加上与石膏板结合,也突出了色差与层次的重要性与吸人眼球的效果,屡试不爽。


主卧室面积不算小,在墙漆颜色上与客厅不同,采用比较温馨的暖灰色,这个颜色既有保护眼睛的作用,又可以增加人的睡眠质量,是很慵懒的一个颜色,效果也不非常好,这是经过多次的实践证明。在空间布局上,把大衣柜放到了电视墙的对面,这样不仅使得衣柜能过做到最大化,增加储物,有使室内活动区域很宽松,不拥挤,也很温馨,是目前大多数年轻人的选择。

对于次卧来说,空间就没那么大了,整体空间南北只有3M左右,考虑到业主的情况,一个大衣柜,一个床头柜,一个床,这样一来,就只能放个1.5M的单人床,负责空间尺寸不够,但是为了让整个空间看起来并不是那么小,只能在墙漆颜色上做“文章”,还是采用浅色系的颜色,这样不仅可以增加业主的睡眠质量,也可以使整体显得很宽敞明亮。

卫生间采用浅黄色的墙地砖,因为这个砖也是浅色系,铺完之后整体亮度很高,因为卫生间本身就是采光不太好的空间,建议是采用色调比较浅的瓷砖,这样的话整体效果较好,卫生间,南北尺寸较长,所以洗衣机与浴室柜并列着放也没有问题,空间利用更合理,使空间更加的明亮,宽敞,层次感更强,空间利用更合理。

厨房空间采光也不是很理想,此时在选择瓷砖上也是需要色彩比较浅,在解决了外墙面的防水问题后,就可以正常施工镶砖了,表面比较明亮的瓷片砖,这样的话会大大缓解采光不足的缺陷,此外也要注重实用与储物空间,对于大多数业主来说,厨房的储物空间似乎都没有够过,随着时间的推移,锅碗瓢盆跟衣服一样,越来越多,空间越来越拥挤,所以再做厨房设计的时候尽量注重尽可能加大厨房的储物空间,橱柜则延伸到餐厅空间,这样一来,在做完水盆之后,剩余空间还有一米多,作为操作空间戳戳有余,这样就满足了储物空间的最大化设计。
【唐山弘艺装饰】致力于唐山大包装修,唐山装修,唐山装修套餐,唐山家装公司,唐山别墅设计,唐山装修效果图,唐山家装整装,唐山家装设计,上千平米材料展厅,上千款品牌主材供业主挑选,五星设计团队、金牌项目经理、材料部、质检部、客户部、为每位业主保驾护航,体现完美服务,创造舒心家装!
装修分期
设计师:刘婷 现代简约/136㎡
设计师:张志鹏 现代简约/169㎡
设计师:程光 现代简约/130㎡
设计师:程光 现代简约/138㎡
设计师:邢志超 新中式/142㎡
设计师:邢志超 现代简约/124㎡