奶油风全屋|温柔到骨子里的家?
设计师:张志鹏 其他/115㎡
作者:弘艺装饰发布时间:2019-05-28
项目名称 《小收藏家》
设计风格 现代简约
地点:恒大学庭
项目面积 66平米
户型 两室一厅
设计师 张志鹏
设计公司 北京弘艺装饰(唐山分公司)
工程费用 48000元
业主信息: 业主经过十年的等待才等到自己心爱的房子,因此对待装修也是非常的重视,业主是一对很有生活品味的中年夫妇,对设计很有自己的想法和追求,对空间色彩搭配很重视,尤其要求合理利用空间,不喜欢特别复杂花式的装修风格,喜欢简单而又温馨的居家氛围。
业主的小故事: 行走于都市中,你看起来和多数人并无明显区别。你不慌不张、不疾不徐,不喧嚣、不张扬、不另类、不闪耀,但干净而得体;你不追求特立独行,不渴望出类拔萃,你只是一步步、脚踏实地的为心中的美好生活而奋斗。你身上一定有某种色彩,能够将你和其他人区隔开来。因为你从未放弃理想的生活,你愿意在力所能及的范围内,靠近更美的一切。

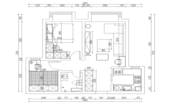
原始图分析:本方案户型为两室一厅紧凑型户型,客厅还算蛮大的,但没有一个合适的餐厅位置,客厅和主卧室都有一个大大的飘窗,入户左手边有足够大的空间去摆放一个足够大的通顶鞋帽柜,厨房属于比较方正的结构,同时可以把冰箱和洗衣机考虑在里面,因为卫生间空间并不是很宽敞。

平面布置图分析:进门左手边是一个通顶鞋帽柜起到很好的收纳作用,客餐厅区域融为一体,由于客户要求要有两个电脑桌,因此将其中一个考虑在了沙发边上位置空间都刚刚好,而且在书桌之上考虑了置物架方便后期使用,厨房建议客户考虑U型柜子,洗衣机嵌入地柜上面有台面后期使用也是比较方便的,主卧室放正常尺寸的双人床和大衣柜保证充足的储物空间,次卧室相对来讲比较小一点,因此考虑的空间领用率次卧室选择了榻榻米,且窗户拐角处刚好放一个书桌,充分利用了空间。主卧室飘窗可以作为平时休闲观景的好地方。


设计理念:每一个阳光灿烂的日子,客厅都是一家人流连的场所,平面上最大可能的解决浪费的起居空间面积,浅色系的客厅,简洁的电视背景并透过柔和的光线,完美彰显艺术色彩,在同一个空间里不同形体的家具共同存在于一个自然色系里,相得益彰,各自生辉。为业主营造一个美满舒适的居家之所,温馨柔和的灯光,一切显得那么和谐!


主卧的整体色彩以主人喜爱的暖色调为主,配以浅色家具,且有跳跃色彩的点缀烘托出舒适、静谧、放松的心境。且整个空间的色彩深浅明暗是那么的协调且浑然天成,所有色彩最大可能应用与自然贴近的颜色与元素,创造舒适自在的生活方式。且空间层次分明,再加上点小装饰画的点缀,显得整体柔美,这样回到家以后就可以身心放松!

考虑到卫生间没有窗户且采光不是很好,所以在砖的选择上是以浅色调为主,在配上白色调为主的简约风格浴室柜整体效果非常好。卫生间是一个湿气、潮气比较重的空间,因此在门的选择上不会去考虑木门,因为时间一长肯定是会开裂甚至变形的,所以尽量考虑钛镁合金的。因为卫生间为暗厕,所以为了保证卫生间里没有异味,通风处理也是比较重要的。所以我们可以自己安装一个通风换气设备用以卫生间通风。也是为了避免在我们沐浴时,卫生间内会产生大量的水和雾气,所以卫生间中装修的材料都应该具备防水、防潮的功能。

厨房橱柜整体色调为暖黄木色且较深一点的色调与其他空间家具的整体色调形成一个反差,整体定制橱柜搭配浅色系的墙地砖整体感觉非常层次分明,地面地砖是延续客餐厅整体铺过来的,这样就避免小地砖缝隙多存杂物的问题,厨房整体空间比较宽敞 ,橱柜也是做的U型橱柜,且冰箱和洗衣机都考虑在了此空间,又考虑了整体的采光性和空间通透性把厨房的门做成了两扇透明玻璃推拉门,使得整个空间更加通透,这样整个厨房的整体橱柜也是完全可以满足业主的储物及操控空间。让我们为你打造属于你的个性美居。。。
【唐山弘艺装饰】致力于唐山大包装修,唐山装修,唐山装修套餐,唐山家装公司,唐山别墅设计,唐山装修效果图,唐山家装整装,唐山家装设计,上千平米材料展厅,上千款品牌主材供业主挑选,五星设计团队、金牌项目经理、材料部、质检部、客户部、为每位业主保驾护航,体现完美服务,创造舒心家装!
装修分期
设计师:张志鹏 其他/115㎡
设计师:邢志超 现代简约/132㎡
设计师:邢志超 现代简约/120㎡
设计师:程光 现代简约/138㎡
设计师:姚志杰 现代简约/184㎡
设计师:邢志超 现代简约/124㎡