开尔云公馆200下跃实景
设计师:孙天立 现代简约/200㎡
作者:弘艺装饰发布时间:2019-05-29
业主基本信息:
房子是三口人居住,家里一个女孩,两口子对整体风格定位比较简单,以舒适为主,需要较多的储物功能,也不喜欢 过多复杂的造型 ,房子是回迁房,已等多年,终于房子下来了,所以更想及早装修,回到属于自己的小家,同时又担心环保问题,所以尽可能的简洁,轻装修重装饰。
业主小故事:
业主是三口之家, 孩子还小,两口子曾今住过出租房,对家没有归属感,所以现在房子下来了,尽可能的扩大储物功能,干净整洁,摒弃华而不实的东西,家里有台式电脑,次卧室也放笔记本电脑,所以台式电脑放置的位置比较纠结,主卧空间比较小,最终确定放在主卧阳台上,虽然空间局促些,但不影响主卧的休息区。

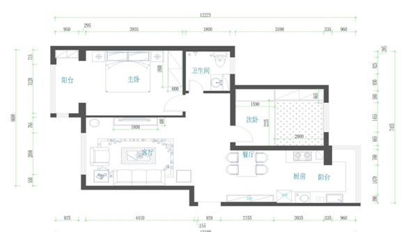
原图分析:
该户型空间比较规整,卧室,客厅和阳台空间足够用,光采性很好。标准的南北通
不足的地方:
1. 厨房空间比较窄,没有多少储物空间和操作台面,厨房有小阳台,但是没有上下水
2. 卫生间空间比较小,没有放洗衣机的位置,洗衣机下水在厨房里

平面分析:
进门口右手边有足够的空间可以放置鞋柜,户型图把原本就不大的居住面积根据功能切割成块,每次接触到这么幸福的家庭,设计师都希望在有限的空间里给他们一个共融的区域,让这个被称作“家”的房子能有一个相融、互动的地方。这一点也正是业主的述求与期望点,所以在方案的改造上将原有的厨房和餐厅及阳台进行打通,不仅仅是空间布局上的扩展融合还是一种新的生活方式。次卧做了一个榻榻米的设计,榻榻米的储藏功能非常强大,这样更能把空间充分利用上。




儿童房选择了粉嫩的墙面及床品,为孩子提供了一间自由畅想的空间。带有书柜的书桌节省空间,平时还可以放放孩子的玩具。童年是梦的年纪,淡淡的、浅浅的粉,不惊艳,不浮夸,没有造作,勾勒的是梦的世界,干净、纯洁。

米白色的墙砖与地面砖搭配,使整个卫生间看起来干净清爽。由于卫生间比较狭窄,没有放置洗衣机的位置,洗衣机上下水在厨房里。白色镜框柜延续了整体北欧格调的简约清新。

整体橱柜实用为主,地面、墙面与顶面都以浅色调为主,由于厨房空间比较小,充分利用阳台空间,扩大储物和操作台面,使得整个厨房空间小巧而又精致。为了弥补餐厅的采光,做了开场式厨房,不仅仅是空间布局上的扩展融合还是一种新的生活方式,打破边界,以前独立的厨房让光和人都融进来。
【唐山弘艺装饰】致力于唐山大包装修,唐山装修网,唐山装修套餐,唐山家装公司,唐山别墅设计,唐山装修效果图,唐山家装整装,唐山家装设计,上千平米材料展厅,上千款品牌主材供业主挑选,五星设计团队、金牌项目经理、材料部、质检部、客户部、为每位业主保驾护航,体现完美服务,创造舒心家装!
装修分期
设计师:孙天立 现代简约/200㎡
设计师:贾倩 现代简约/129㎡
设计师:张志鹏 现代简约/169㎡
设计师:邢志超 现代简约/132㎡
设计师:张天任 新古典/147㎡
设计师:姚志杰 现代简约/184㎡