开尔云公馆200下跃实景
设计师:孙天立 现代简约/200㎡
作者:弘艺装饰发布时间:2019-05-29
项目名称:《幸福时光》
设计师姓名:刘瑞芹
设计公司:北京弘艺装饰
地点:恒茂国际
项目面积:104㎡
工程费用:7.5万
业主基本信息:
男主人是游泳教练,女主人为教师,两人有个八岁的儿子,平时三口人居住,因为职业原因,女主人要求有个大大的书柜,有足够的储物空间,整体风格喜欢简约风格风格,喜欢冷色系
业主小故事:
男主人家初次置办的房子有60多平米,结婚前由于房子比较拥挤想让空间看着宽敞一点,就没有做过多的柜子,但结婚后,爸妈送的,太太的陪嫁大小棉被就有八床,加上其它的床上用品更是一大堆,有小孩以后,几年下来的旧衣服,儿子长的太快留下来的衣服,鞋子,玩具也是日积月累的多起来,到头来家里还是乱七八糟,沙发椅背上都那个挂着衣服。一到夏天换凉席,凉枕家里更是没有收纳空间了

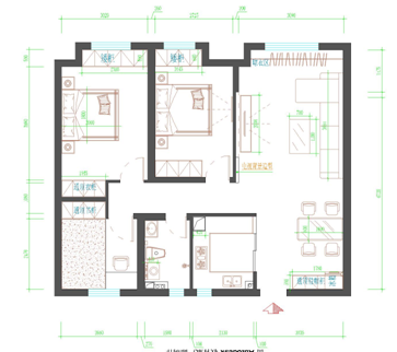
原始量房图户型分析:
1、 此户型为南北通户型,户型非常的方正,白天采光充足,通风性良好。
2、 此户型没有阳台,后期应该从客厅位置规划出一个阳台
3、 此户型次卧室平米比较小,采光稍微要差一些。

平面布置图分析
此平面布局,一进门左手边为厨房,厨房空间比较方正,厨房窗户比较小,又在北面,厨房外面有消防通到挡光.原始户型为小的门洞,后期经过改造把厨房门洞扩大,改成双扇推拉门,增加餐厅及入户位置的采光,一进门右手边的位置为鞋柜,厨房旁边挂了一个全身的穿衣镜,出门的时候可以整理下行装.


每个人都喜欢自由,追求自由,所以家里装修一定要简洁,我接触的业主一家人对待生活很热情,正是他们的热情感染了我让我有了创作的激情,好的设计是有感情的,灰色中透着淡淡的暖色让家里非常有层次感。 现代日子水平的进步给大家的日子带来了很大的自由空间,大家在对寓居的环境也提出了更高的需求,环保的家居环境受到了更多的期待,精约的个性、私密的自个空间逐渐的成为新的时髦,在这个个性的引导下,家私的组合规划也趋向于优化。


本案例是现代简约风格。运用简约简洁的设计手法强调室内空间形态的单一性、抽象性。大量运用纯色,突出色彩的跳跃,大胆而灵活,不仅是对风格的遵循,也是个性的展示。简约不等于简单,经过深思熟虑后经过创新得出的设计和思路的延展,不是简单的“堆砌”和平淡的“摆放”。在家具配置上,白亮光系列家具,独特的光泽使家具倍感时尚,具有舒适与美观并存的享受。在配饰上,延续了黑白灰的主色调,以简洁的造型、完美的细节营造时尚前卫的感觉。


睡床是沿着窗户摆设,两边预留阿足够的走动空间,床头背景粉刷灰绿色墙漆,突出床头背景,与地面地砖颜色相近,看起来甚是和谐。床品采用浅灰色软包形式,增加卧室的舒适感,配上深灰色的床品床头两边金属材质的台灯凸显了整个空间的大气感,床旁边有一个大大衣柜增加了整个屋子的储物空间,卧室顶面采用石膏线,从视觉不会显着压顶.现代住所的开展,小家庭的组成,大家心理上的需求,期望卧室具有私密性、蔽光 性,配套洗浴,静谧舒服,与住所内其他房间分隔开来。我规划的卧室除了主卧加了个内卫外,再者除了摆放双人床外,留有必定的面积摆放卧室家私,如衣柜,电视柜,床头柜,还留有必定空间能够休闲活动

在设计次卧室床头背景墙其实不用太过于复杂,一个好的卧室床头背景墙设计是突显品味的地方。但是相对来说次卧室可以弱化设计,一般都是作为儿童房,不必设计的太繁琐,一般是做为客房,也没必要设计的太复杂。简单的卧室床头背景墙装修就可以将装饰画或婚纱照等等,有深意的物件展示出来。

很多时候,由于房间户型设计的局限性,卫生间的面积比较狭小,但科学合理的设计,可以让卫生间看起来明亮宽敞且使用,虽然卫生间狭小但是不要忽略卫生间这个小地方,他关系着全家人的健康以及生活质量,卫生间设计要注意防水,防潮,通风,美观和易清洁同样重要,卫生间里面采用悬空式浴室柜,这样比较好清洁大理,马桶后面加上花片点缀,为整个卫生间增添了活力。

很多时候,由于房间户型设计的局限性,卫生间的面积比较狭小,但科学合理的设计,可以让卫生间看起来明亮宽敞且使用,虽然卫生间狭小但是不要忽略卫生间这个小地方,他关系着全家人的健康以及生活质量,卫生间设计要注意防水,防潮,通风,美观和易清洁同样重要,卫生间里面采用悬空式浴室柜,这样比较好清洁大理,马桶后面加上花片点缀,为整个卫生间增添了活力。
装修分期
设计师:孙天立 现代简约/200㎡
设计师:刘婷 现代简约/136㎡
设计师:张志鹏 现代简约/169㎡
设计师:邢志超 现代简约/132㎡
设计师:邢志超 现代简约/120㎡
设计师:张天任 新古典/147㎡