现代简约风,高级感藏在细节里
设计师:刘婷 现代简约/136㎡
作者:弘艺装饰发布时间:2019-06-07
项目名称:《现代》
设计师姓名:杨奇
设计公司:北京弘艺装饰
地点:景泰翰林F区
项目面积:87
主要材料:墙漆、瓷砖、石膏线、地板
工程费用:6万
业主基本信息:
男业主是网络管理员,女业主是医生,生活节奏比较快,喜欢浅颜色的物品,希望在设计中多用浅灰色,不喜欢传统身颜色还要显现出轻奢的氛围和温馨的感觉,在浅色系里做出一个属于他们自己的温暖的小家,生活很幸福。
业主小故事:
男业主平时工作不是很忙,但是为人做事非常有原则,记得印象最深的一件事是这样,客户一早来看装修公司,但是一直没找到合适的装修公司与设计师,而且装修公司经常给他打电话已经很烦躁了,到了晚上来到我公司由我接待了他们,但是通过详细的交谈后,我的设计想法理念很符合客户要求也是客户喜欢的,客户说也去过的装修公司把自己的想法告知设计师但是没有一个人能理解他的要求想法,但是与我交流后只是简短的意思就明确客户想要的把每个细节表现形式说出来,感觉把自己想要的却表达不出来的感觉被设计师一言道破,谈完设计后看了报价和材料就定了下来。

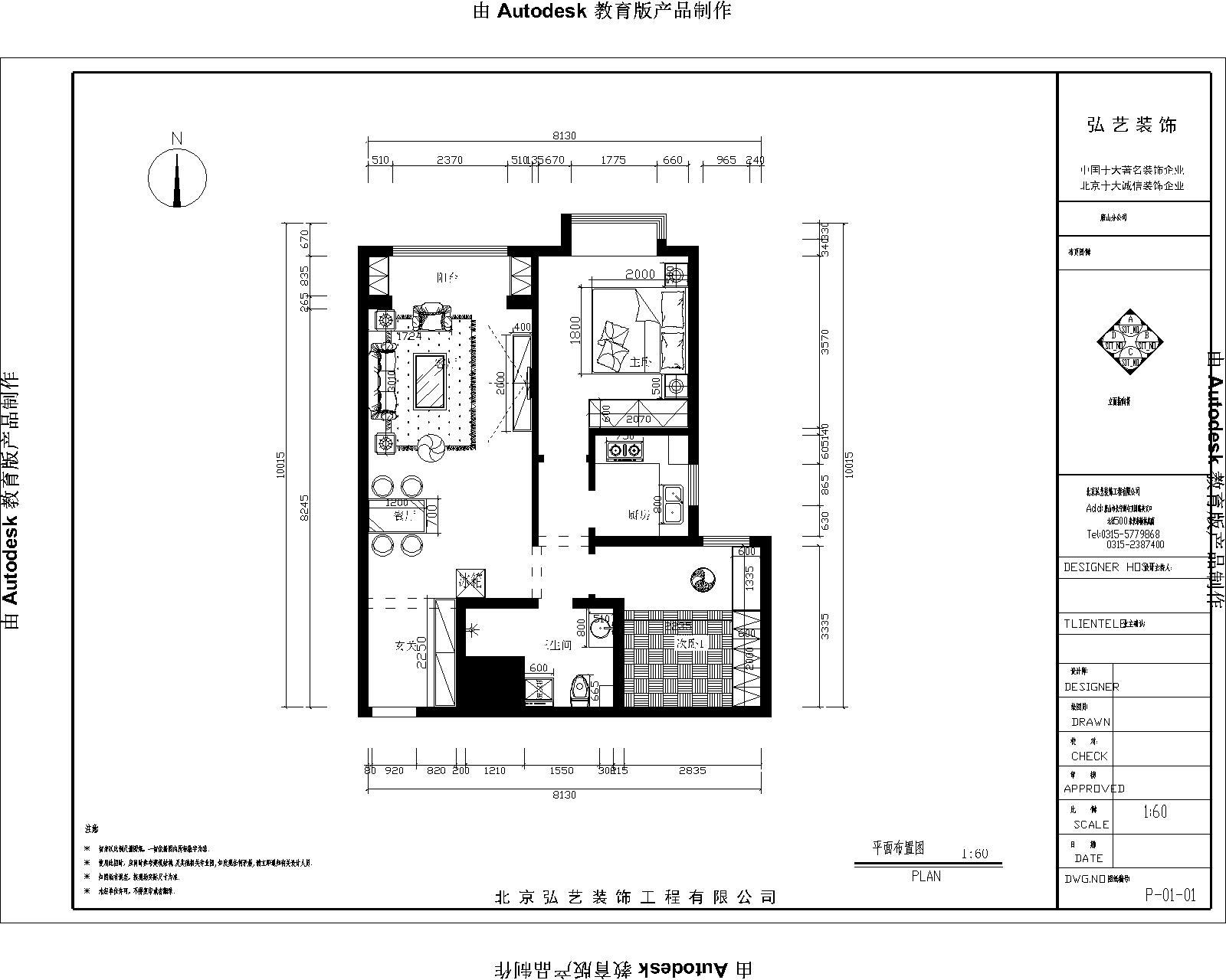
原始量房图户型分析:
1、此户型为朝南户型,虽然采光通风很好,但是客餐厅整体来说挺大, 餐厅比较小,位置有限,显得很拥挤。
2、卫生间面积不大,空间相对来说比较拥挤。
3、主卧面积虽然不算小,但是空间布局受限制。

平面布置图分析
1:客餐厅由于面积算很大,所以在色彩搭配上尽量选用统一的颜色色这样布局很容易出效果,还会由于空间比较明亮,还会使室内空间显得很大,产生一种视觉错觉。以及在后期家具选择上有更好的选择,功能性很强,这样的话就不会摆完家具后不会显得小或者拥挤,反而会更有效果。
2:主卧室的墙面颜色和家具颜色也是以浅色为主,由于空间不算小,在考虑多个方案后,感觉还是把衣柜放到了床对面的那面墙,这样的话不仅空间布局合理,而且满足的功能更多,能增加更多的储物空间。
3:卫生间面积小,但是还要分出主次。


本次案例是一个87平米的户型设计,客厅的落地窗满足了客餐厅的采光性与通风性,而对于业主来说,这套温馨的港湾是业主多年的向往,在本案中整体色系也是采用一种比较安静素雅的颜色,整体给人一种安静,放松的感觉,仿佛当业主拖着一身疲惫的身体推开门的一刹那,感觉来到了属于自己内心的世界,无论外面多么嘈杂,多么冷漠,好像都和自己无关

整个空间的色调为浅色系,因为浅色的色彩可以使人紧张的神经系统和视觉神经得到很好的放松和舒缓压力,客餐厅顶部做了些石膏板线,很好的突出了现代简约风格的线条感,既有层次,又简单大气,还不爱过时;背景墙采用墙漆颜色简单明快,下面的电视柜是木质柜台面,这样下来色彩与材质都一样,才能保证效果,也突出了色差与层次的重要性与吸人眼球的效果,屡试不爽。


主卧,次卧室面积不算小,在墙漆颜色上与客厅不同,采用比较温馨的暖白色,这个颜色既有保护眼睛的作用,又可以增加人的睡眠质量,是很慵懒的一个颜色,效果也不非常好,这是经过多次的实践证明。在空间布局上,把大衣柜放嵌入式的墙体里面更加节省空间,这样不仅使得衣柜能过做到最大化,增加储物,有使室内活动区域很宽松,不拥挤,也很温馨,是目前大多数年轻人的选择,深色的地板更加衬托出家具配上的高档。

卫生间采用米黄色的墙地砖,因为这个砖也是浅色系,铺完之后整体很高档,因为卫生间本身就是要保持干净的空间,建议是采用色调比较浅的瓷砖,这样的话整体效果较好而且好打理,卫生间是接近正方形,所以洗衣机与浴室柜对面放也没有问题,空间利用更合理,浅色版的墙砖,层次感更强。

厨房与餐厅空间采光也很理想,此时在选择瓷砖与橱柜颜色也是需要色彩比较浅,浅色橱柜表面与比较明亮的瓷片砖形成鲜明对比,这样的话会显示出厨房的整洁,此外也要注重实用与储物空间,对于大多数业主来说,厨房的储物空间似乎都没有够过,随着时间的推移,锅碗瓢盆跟衣服一样,越来越多,空间越来越拥挤,所以再做厨房设计的时候尽量注重尽可能加大厨房的储物空间。
装修分期
设计师:刘婷 现代简约/136㎡
设计师:张志鹏 其他/115㎡
设计师:邢志超 现代简约/132㎡
设计师:程光 现代简约/130㎡
设计师:张伟 新古典/92㎡
设计师:邢志超 现代简约/120㎡