奶油中古风,温柔与复古撞个满怀
设计师:贾倩 现代简约/129㎡
作者:弘艺装饰发布时间:2019-06-07
项目名称 《其乐融融》
设计风格 简约美式
地点:景泰翰林F区
项目面积 73平米
户型 两室一厅
设计师 张志鹏
设计公司 北京弘艺装饰(唐山分公司)
主要材料 墙漆 石膏板 石膏线 抛釉砖
工程费用 46000元
业主信息 业主刚刚买的房子,是一对很有生活品味的年轻夫妇,对设计很有自己的想法和追求,对空间色彩搭配很重视,并且合理利用空间,不喜欢特别复杂花式的装修风格,喜欢简单而又温馨的居家氛围。
业主的小故事 行走于都市中,你看起来和多数人并无明显区别。你不慌不张、不疾不徐,不喧嚣、不张扬、不另类、不闪耀,但干净而得体;你不追求特立独行,不渴望出类拔萃,你只是一步步、脚踏实地的为心中的美好生活而奋斗。你身上一定有某种色彩,能够将你和其他人区隔开来。因为你从未放弃理想的生活,你愿意在力所能及的范围内,靠近更美的一切。

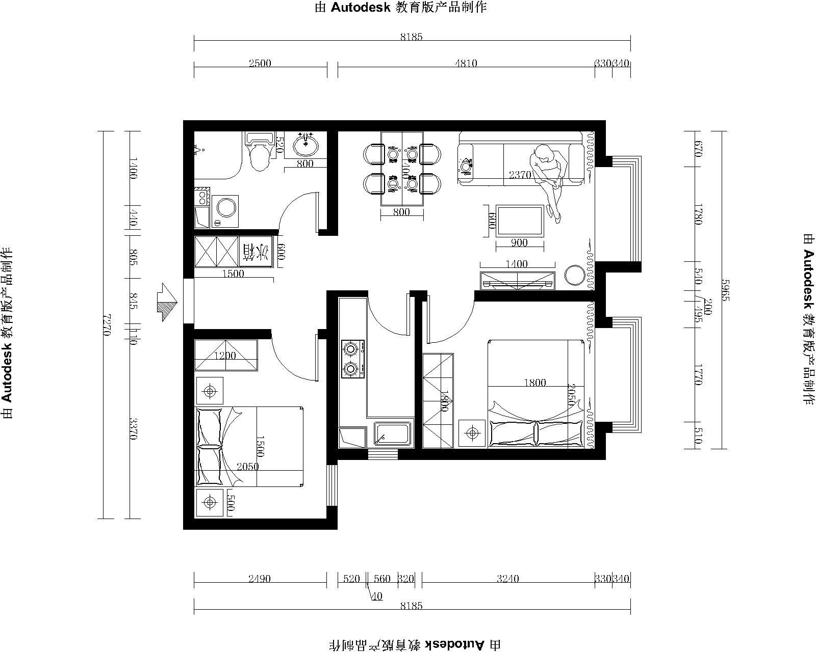
原始图分析:本方户型为两室一厅双阳面户型,客餐厅一体式的户型,客厅和主卧室都有一个大大的飘窗,便于休闲和观景,厨房属于细长型结构,但不适合把冰箱考虑在里面,卫生间空间比较大能够合理摆放洁具。

平面布置图分析:进门左手边是一个鞋柜直接到顶起到很好的收纳作用且冰箱与之融为一体,冰箱离厨房距离也是非常短,使用上也是非常的方便,餐厅和客厅区域融为一体,厨房是L型柜子,主卧室放正常尺寸的双人床和大衣柜保证充足的储物空间,次卧室也比较宽敞摆放床头柜和衣柜,充分利用了空间。


设计理念:每一个阳光灿烂的日子,客厅都是一家人流连的场所,平面上最大可能的解决浪费的起居空间面积,浅色系的客厅,于背景墙处透过柔和的光线,完美彰显艺术色彩,在同一个空间里不同形体的家具共同存在于一个自然色系里,相得益彰,各自生辉。为业主营造一个美满舒适的居家之所,餐厅是一家人齐聚的时刻,在这里有欢声笑语,有意见商议,有酒后饭余后的心灵沟通,温馨柔和的灯光,一切显得那么和谐!


主卧的整体色彩仍以主人喜爱的色调为主,配以深色家具,烘托出舒适、静谧、放松的心境。米色棉麻材质被子,最大可能应用与自然贴近的颜色与元素,创造舒适自在的生活方式。透视感,空间之间可以互相共享,增加空间层次。留有充裕的储物空间,可以随心安置私人物品。加上点小装饰画的点缀,显得整体柔美,这样回到家以后就可以身心放松!

厨房橱柜整体色调为浅色调与其他空间家具的整体色调形成一个反差,整体定制橱柜搭配浅色系的墙地砖整体感觉更加清爽,地面地砖是延续客餐厅整体铺过来的,这样就避免小地砖缝隙多存杂物的问题,厨房整体空间比较狭长 ,橱柜也是做的L型橱柜,配的吸塑材质的门板,并且因为厨房空间不是很宽敞所以没有把冰箱考虑在此空间,这样整个厨房的整体橱柜完全可以满足业主的储物及操控空间。让我们为你打造属于你的个性美居。。。
装修分期
设计师:贾倩 现代简约/129㎡
设计师:邢志超 现代简约/132㎡
设计师:邢志超 现代简约/120㎡
设计师:张天任 新古典/147㎡
设计师:姚志杰 现代简约/184㎡
设计师:张志鹏 法式/135㎡